Hoofdafmetingen; Principal Dimensions; Dimensiones Principales; Dimensioni Principal - Vetus V-Docker Manual De Manejo Y Instrucciones De Instalación

Tabla de contenido
Idiomas disponibles
  • ES

Idiomas disponibles

  • ESPAÑOL, página 61

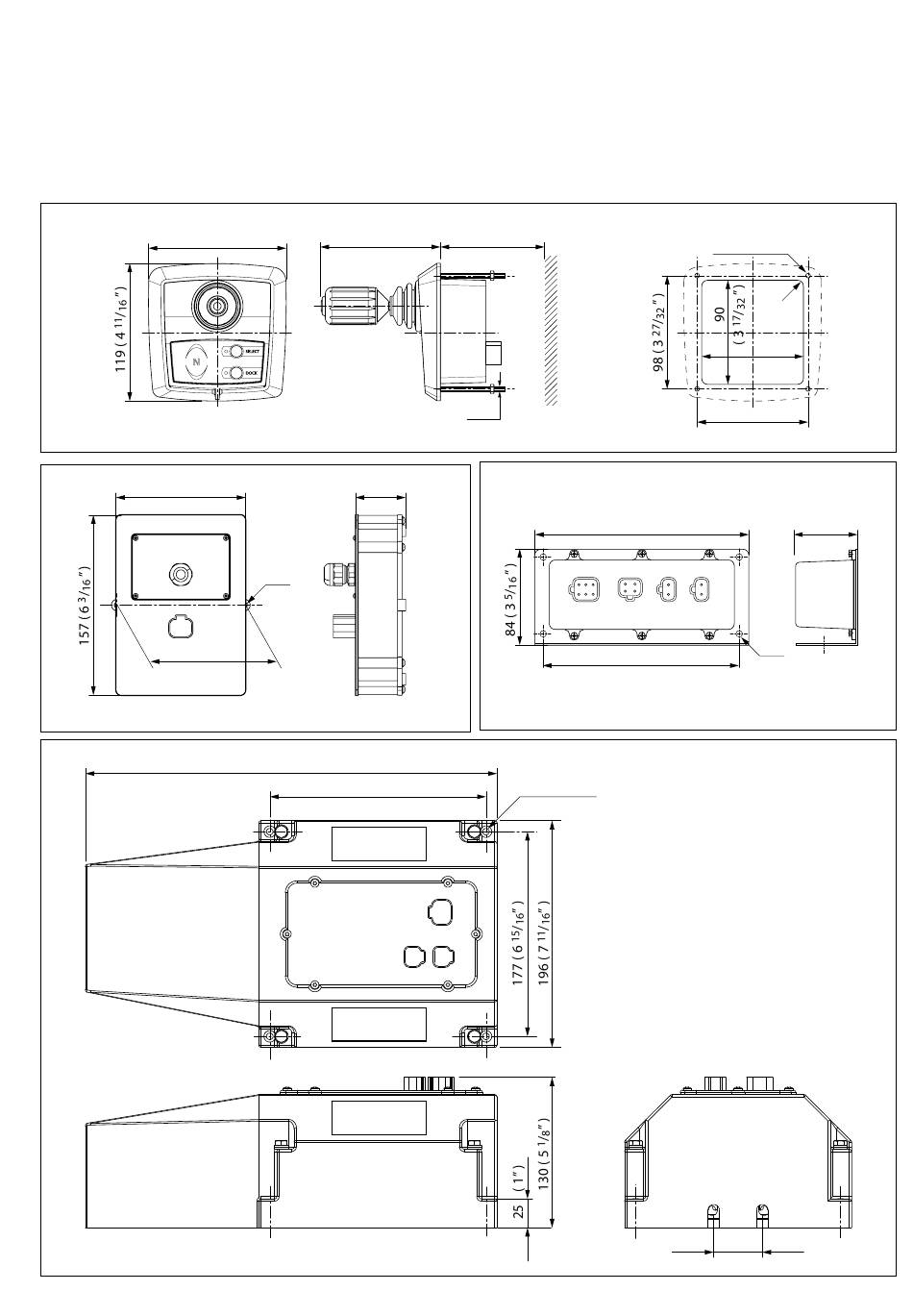
12 Hoofdafmetingen

Principal dimensions

Hauptabmessungen
119 ( 4
Panel
112 ( 4
7
/
" )
16
111 ( 4
3
I/O Box
Actuator
vetus® Installation Manual V-docker
11
/
" )
104 ( 4
1
16
43 ( 1
11
ø 5
3
(
/
" )
16
/
" )
8
356 (14")
187 ( 7
3
/
Dimensions principales

Dimensiones principales

Dimensioni
/
" )
90 ( 3
1
/
" )
8
2
M4
/
" )
16
172 x 69 ( 6
Control box thruster
7
" )
ø 5.5 (
8
Preliminary
principalin
ø 4.5 (
96 ( 3
184 ( 7
1
/
" )
4
MOTOR
CAN
AUX IN
AUX OUT
3
/
" x 2
11
/
" )
4
16
/
" )
32
42
3
/
" )
16
R 5
(
3
/
" )
16
88
( 3
15
/
" )
32
15
/
" )
32
55 ( 2
3
/
" )
16
ø 6
(
1
/
" )
4
( 1
5
/
" )
8
89
020702.01
Tabla de contenido
loading

Tabla de contenido