Panel De Control (Opcional); Panel De Control Termostático Bt 2 Y 3 Etapas De Quemador; Vista Frontal Del Panel - Ferroli Prextherm Rsw 92N Instrucciones Para El Uso, La Instalación Y El Montaje

Ocultar thumbs Ver también para PREXTHERM RSW 92N:
Tabla de contenido
Idiomas disponibles
  • ES

Idiomas disponibles

  • ESPAÑOL, página 1
6.

PANEL DE CONTROL (OPCIONAL)

C16015180 – Panel de control termostático BT 2 Etapas
C16015190 – Panel de control termostático BT 3 Etapas
C16015150 – Panel de control EBM (Efficient Boiler Management)
6.1 Panel de control termostático BT 2 y 3 Etapas de quemador
(Los esquemas que aparecen acontinuación son validos para los tres paneles.)
Panel no suministrado, realizado en plástico con un grado de protección IP40, acoge la instrumentación de regulación y de seguridad. Los
paneles BT incluyen una señal de termostato para control de la bomba anticondensados, según lo descrito en el párrafo 5.5.5. La instala-
ción eléctrica de la caldera debe ser:
- diseñada y realizada por personal cualificado y conectado a una instalación de toma de tierra de acuerdo con las normas legales
vigentes.
- adecuada a la potencia máxima absorbida por la caldera con cables eléctricos de sección idónea.
Los cables de alimentación y conexión al quemador deben tener el conductor de tierra algunos mm. más largo que los otros conductores
del mismo cable. Para las conexiones entre quemador, panel eléctrico y suministro eléctrico se recomienda el uso de cable H07 RN-F para
conexiones con instalación a la vista. Para otros tipos de instalación o para situaciones ambientales especiales se recomienda consultar las
normativas vigentes. La formación y el diámetro de los conductores se calculan en base a la potencia absorbida por el quemador. Para
acceder a los instrumentos, girar el panel frontal (A). Para acceder a los terminales de conexión y para extender los capilares de los ter-
mostatos y del termómetro, retire el panel superior (B) antes, desmontar los 2 tornillos laterales (C). Los termostatos de regulación (12-13
- Fig. 12) pueden ser ajustados por el usuario mediante el pomo frontal. El termostato de seguridad es de regulación fija y tiene un rearme
manual. Es obligatorio:
- el uso de un interruptor magnetotérmico bipolar, disyuntor de línea, conforme a las normas CEI-EN (apertura de los contactos de cómo
- mínimo 3 mm)
- respetar la conexión L1 (Fase) - N (Neutro)
- utilizar cables con sección mayor o igual a 1,5 mm2 que incluyen terminales
- remitirse a los esquemas eléctricos del presente manual de instrucciones para cualquier intervención de tipo eléctrico
- realizar una eficaz conexión de tierra
- está prohibido el uso de los tubos del agua para la puesta a tierra del aparato.
El fabricante no es responsable de los eventuales daños causados por la falta de puesta a tierra del aparato y el incumplimiento de cuanto
figura en los esquemas eléctricos.

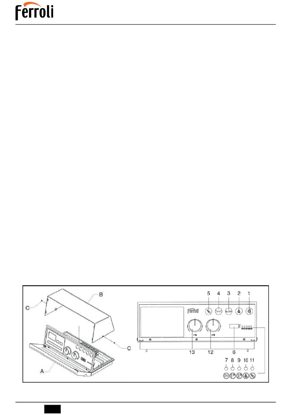
6.1.1 Vista frontal del panel

Leyenda
1
Interruptor encendido bomba instalación
2
Interruptor encendido quemador
3
Interruptor encendido caldera
4
Pulsador Test
5
Pulsador restablecimiento presostato de seguridad
6
Temperatura agua caldera
7
Piloto led caldera conectada
12
ES
PREXTHERM RSW N
8
Piloto led 1ª etapa quemador
9
Piloto led 2ª etapa quemador
10
Piloto led bloque quemador
11
Piloto led presostato de seguridad
12
Termostato TR1 regulación 2ª etapa
13
Termostato TR1 regulación 1ª etapa
14
Predisposición para centralita de termorregulación
fi g.14
A73020801

Hide quick links:

Tabla de contenido
loading

Tabla de contenido