Instalación; Condiciones De Instalación - Endress+Hauser Liquiline System Ca80Tp Manual De Instrucciones

Analizador colorimétrico de fósforo total
Ocultar thumbs Ver también para Liquiline System CA80TP:
Tabla de contenido
Liquiline System CA80TP
Endress+Hauser
5
Instalación
ATENCIÓN
L
Un transporte incorrecto puede ocasionar daños o desperfectos en el dispositivo
Para transportar el analizador, utilice siempre una carretilla elevadora o un toro
mecánico con horquillas. Se necesitan dos personas para la instalación.
Levante el equipo agarrándolo por los asideros integrados en el mismo.
5.1
Condiciones de instalación
El equipo puede instalarse de las siguientes maneras:
• Como equipo de sobremesa independiente
• Montaje en una pared
• Montaje en una base
• Montado en un estand
5.1.1
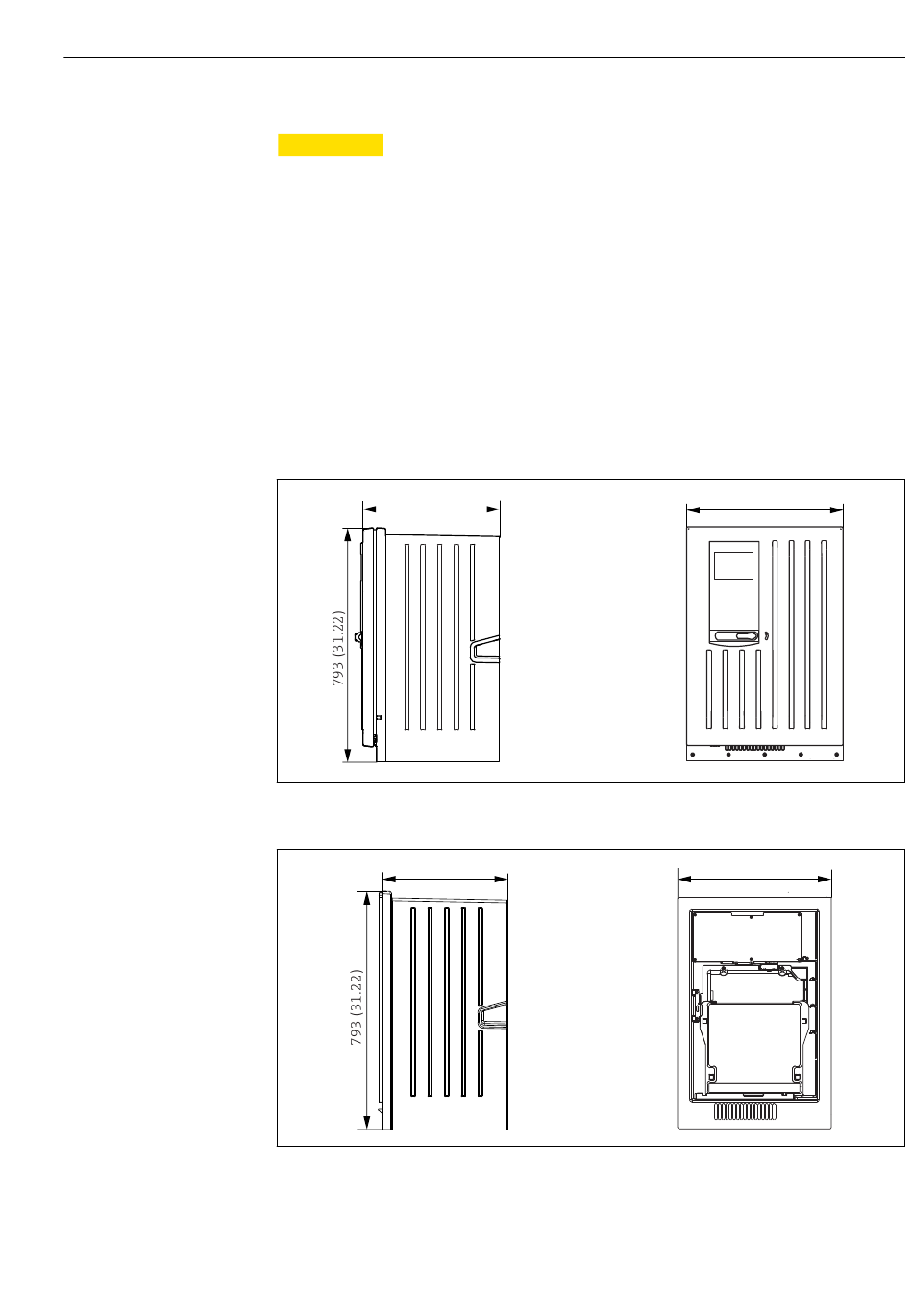
Dimensiones
463 (18.23)
 8
Liquiline System CA80 versión cerrada, dimensiones en mm (pulgadas)
417 (16.42)
 9
Liquiline System CA80 versión abierta, dimensiones en mm (pulgadas)
Instalación
530 (20.87)
A0028820
530 (20.87)
A0030419
15
Tabla de contenido
loading

Tabla de contenido