Sew Eurodrive Movitrac B Instrucciones De Funcionamiento página 233

Ocultar thumbs Ver también para Movitrac B:
Tabla de contenido
Datos técnicos de las resistencias de frenado, reactancias y filtros
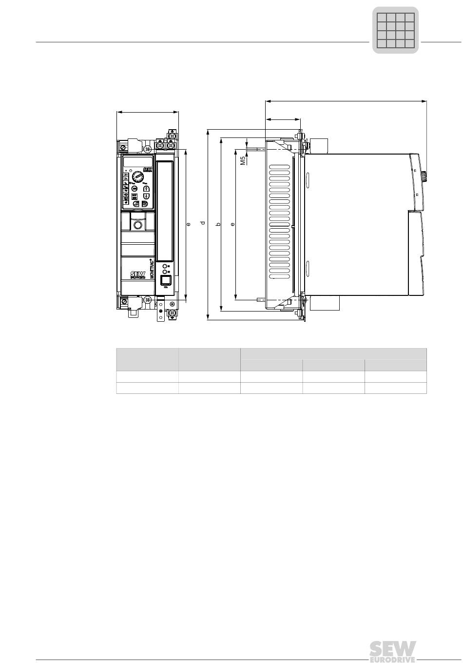
Dimensiones
En la siguiente figura se indican las dimensiones mecánicas en mm (in).
HD100 / HD101
* Con módulo frontal FSE24B + 4 mm (0,16 in)
Tipo de bobina de
Instrucciones de funcionamiento – MOVITRAC
80 (3.1)
®
MOVITRAC
salida
HD100
Tamaño 0S
HD101
Tamaño 0L
®
B
Datos técnicos
45 (1.8)
B
Dimensiones principales en mm (pulg.)
b
226 (8.90)
314.5 (12.38)
336.5 (13.25)
n
kVA
f
i
P
Hz
208.5 (8.209) *
9007199616643467
d
e
248 (9.76)
196 (7.72)
284.5 (11.20)
8
233

Hide quick links:

Tabla de contenido
loading

Tabla de contenido