mabe CEM7640BAP Manual De Uso Y Cuidado página 40

Ocultar thumbs Ver también para CEM7640BAP:
Tabla de contenido
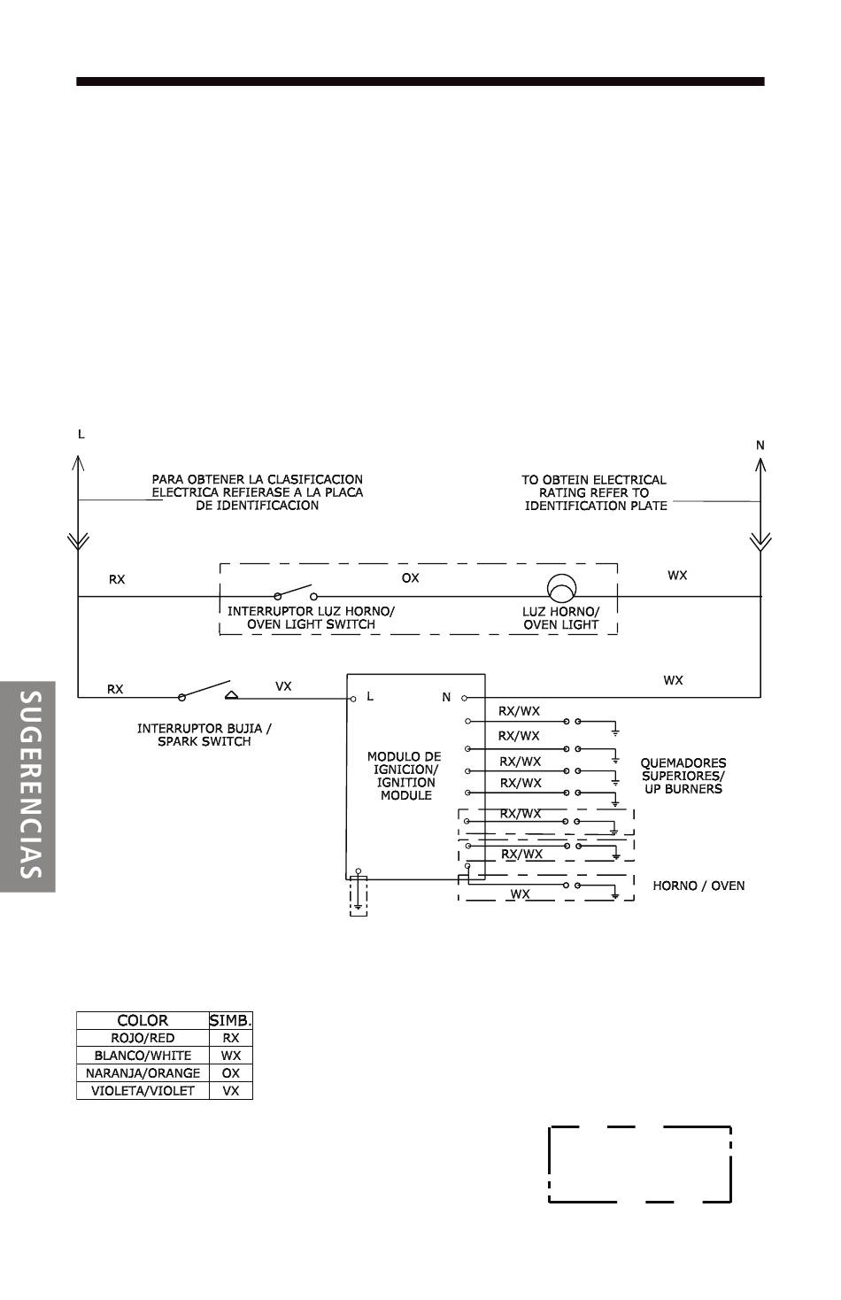
Diagrama 317B8267P001
(Ver cuadro de características por modelo, al final del manual.)
ADVERTENCIA: DESCONECTE DE LA ENERGÍA ELÉCTRICA ESTE APARA-
TO ANTES DE EFECTUARLE CUALQUIER TIPO DE SERVICIO.
WARNING: DISCONNECT THE POWER OF THIS APPLIANCE BEFORE
ANY TYPE OF SERVICE.
ALGUNOS MODELOS /
NOT IN ALL MODELS
40

Hide quick links:

Tabla de contenido
loading

Tabla de contenido