Dimensioni Stufa Idro Prince 30 - 30 H O - Cadel Idro Prince3 12 Manual De Instalación, Uso Y Manutención

Termoestufa de pellets
Ocultar thumbs Ver también para IDRO PRINCE3 12:
Tabla de contenido
ES
4.3
DIMENSIONI STUFA IDRO PRINCE 30 - 30 H
20
IDRO PRINCE
12-16-23-23 H
3
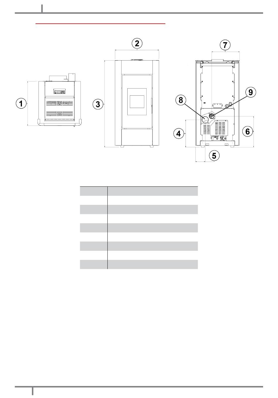
Fig. 17 - Idro Prince 30-30 H
LEYENDA Fig. 17 a pag. 20
1
69 cm
2
68,5 cm
3
135,5 cm
4
42,8 cm
5
15,1 cm
6
48,6 cm
7
25,2 cm
8
Salida de humos d.10 cm
9
Toma de aire comburente d.8 cm
O - IDRO PRINCE 30-30 H
O - AQUOS
2
2
3
O
2
O
2
16-23-23 H
O - IDRON 16-22 AIRTIGHT - MIRA 16-22 - TESIS 16-23 AIRTIGHT - HIDROFIRE 22.8
2
Tabla de contenido
loading

Tabla de contenido