Technische Zeichnungen - Mitsubishi Electric Ecodan Ehst20 Serie Para El Instalador

Ocultar thumbs Ver también para Ecodan EHST20 serie:
Tabla de contenido
Idiomas disponibles
  • ES

Idiomas disponibles

  • ESPAÑOL, página 242
3
Technische Informationen

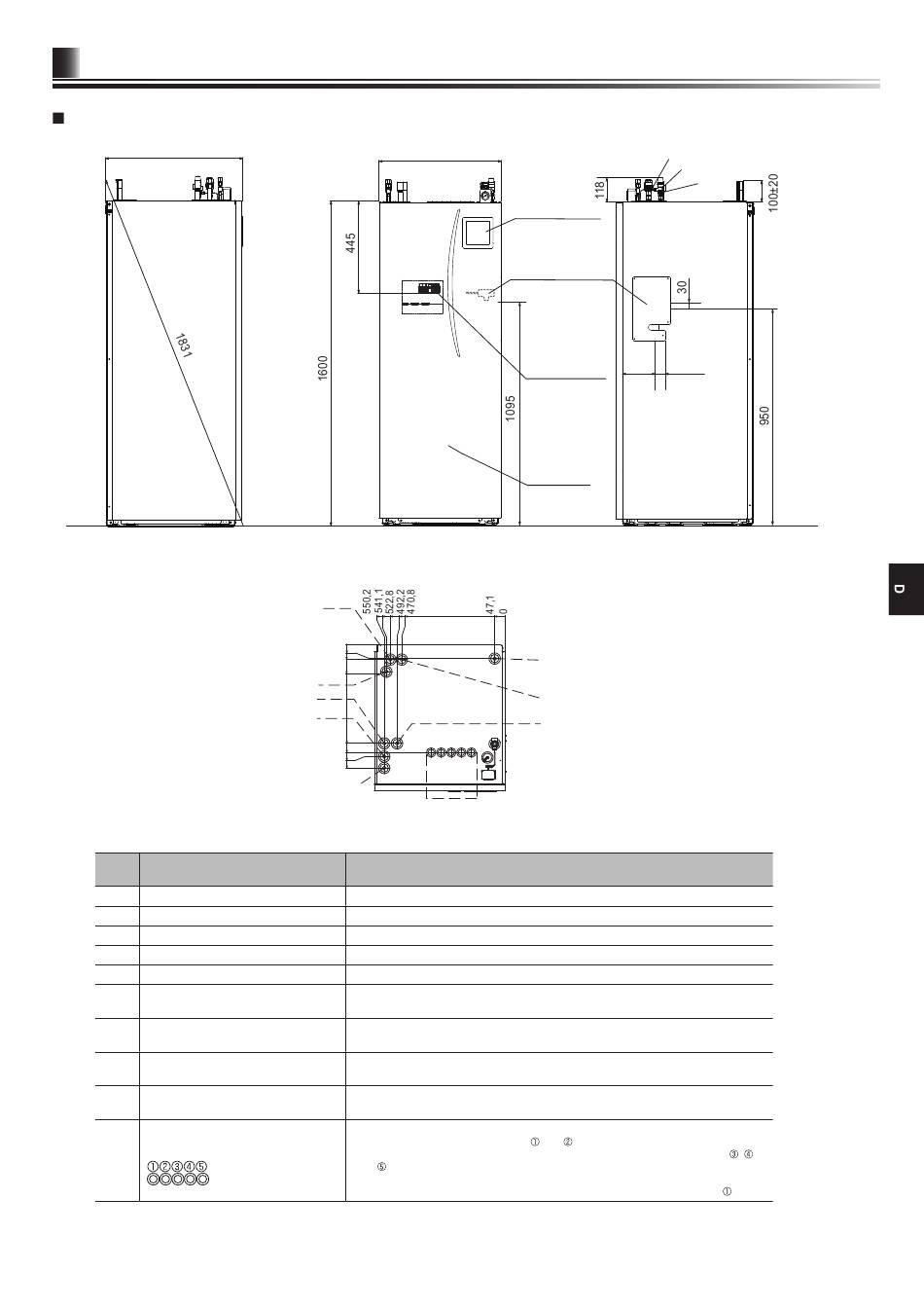
Technische Zeichnungen

680
<Linke Seite>
Buch-
Rohrbeschreibung
stabe
A
TWW-Auslassanschluss
B
Anschluss für Kaltwassereinlass
C/D
Solarthermie (Zusatzwärmequelle)
E
Anschluss für Raumheizungsrücklauf
F
Anschluss für Raumheizungsvorlauf
Vorlauf vom Wärmepumpenanschluss
G
(Kein Plattenwärmetauscher)
Rücklauf zum Wärmepumpenanschluss
H
(Kein Plattenwärmetauscher)
Kühlmittel (GAS)
J
(Mit Plattenwärmetauscher)
Kühlmittel (FLÜSSIG)
K
(Mit Plattenwärmetauscher)
Elektrische Kabelzuführung
L
595
<Vorderseite>
C
0
63,3
67,8
123
D
E
G / J
449,7
491,1
509,7
561,7
H / K
L
<Oben>
Anschlussgröße/-typ
22 mm/Kompression
22 mm/Kompression
22 mm/Kompression
28 mm/Kompression
28 mm/Kompression
28 mm/Kompression
28 mm/Kompression
15,88 mm/Bördel
9,52 mm/Bördel
Verwenden Sie für die Zuführungen
externen Eingangs- und Fühlerleitungen. Verwenden Sie für die Zuführungen
und
Niedrigspannungsleitungen mit Netzkabel, Innen- und Außenleitung sowie
externen Ausgangsleitungen.
*Verwenden Sie für einen (optionalen) drahtlosen Empfänger die Zuführung
<Tabelle 3.7>
Entlüfter
Hauptregler
Temperatur und
Überdruckventil
und dessen Zugangsdeckel
(nur EXPT20X-VM2HB)
156
50
Klemmleiste
Frontabdeckung
<Rechte Seite>
A
B
F
und
Niedrigspannungsleitungen mit
<Einheit: mm>
Überdruckventil
G1/2
,
.
0

Hide quick links:

Tabla de contenido
loading

Tabla de contenido