Fermax DETECTA-6 Manual De Instalación página 31

Ocultar thumbs Ver también para DETECTA-6:
Tabla de contenido
DETECTA-6
DETECTA-6
R
1
4
Notas
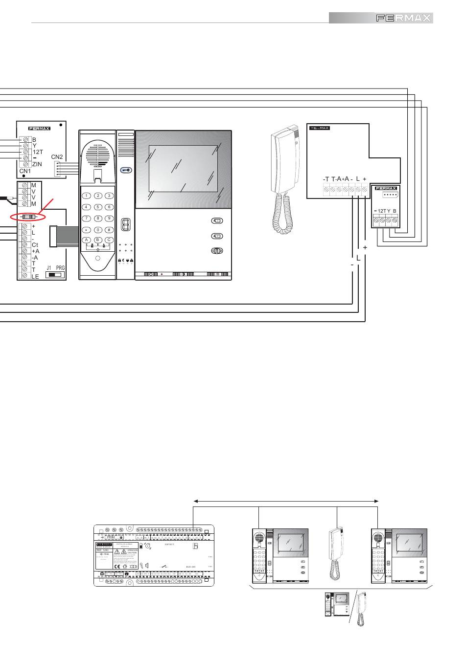
- Número máximo de terminales Detecta-6 en una misma vivienda: 3.
- Distancia máxima desde la central hasta el último terminal Detecta-6: 100m.
- Es posible ampliar la instalación con monitores/teléfonos no Detecta-6 siempre
y cuando se dimensione correctamente la alimentación de la instalación.
La limitación del número de terminales ADS no detecta-6 vendrá dada por la
capacidad del alimentador.
- En instalaciones con más de un monitor por vivienda, cortar la resistencia «R»
en todos los monitores excepto en el último.
F E R M A X
2
3
5
6
max. 100m
F E R M A X
1
2
3
4
5
6
F E R M A X
max. 3
1
2
3
4
5
6
F E R M A X
1
2
3
4
5
6
Pag 31
Tabla de contenido
loading

Tabla de contenido