Genie GS -1530 Manual De Mantenimiento página 220

Tabla de contenido
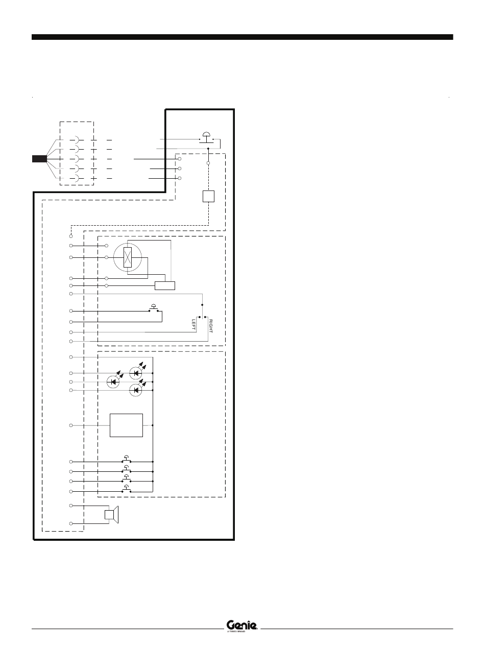
Sección 6 • Esquemas
Esquema eléctrico
Modelos CE
GS-1530/1532/1930/1932 (entre los números de serie GS3005A-76389 y GS3005A-79394)
GS-1530/1532/1930/1932 (entre los números de serie GS3005B-76031 y GS3005B-76920)
QD3
4
4
BK
POWER TO PLATFORM
3
3
RD
POWER TO GROUND
1
1
WH
GROUND
2
2
BL
DATA LINK (HIGH)
5
5
OR
DATA LINK (LOW)
U3
PLATFORM CONTROLS
PRINTED CIRCUIT BOARD
BN
GY
GN
WH
BL
FUNCTION ENABLE
PP
OR
PIN9
BK
PIN8
RD
PIN10
BK
POUT1
POUT2
POUT3
G8
POUT4
DIAGNOSTIC
DISPLAY
PIN1
PIN2
PIN3
PIN4
RD
+
POUT11
H1
ALARM
BK
-
PIN11
6 - 48
P2
EMERGENCY
STOP
BK
RD
PIO3
PIO2
PIO4
PIO5
24V DC
D7
5V DC
VOLTAGE
REGULATOR
JC1
HALL EFFECT
GENERATOR
JOYSTICK
CONTROLLER
SW5
SW6
STEER
LEFT/ RIGHT
PLATFORM CONTROLS
MEMBRANE DECAL
LIFT LED L16
DRIVE LED L17
HIGH TORQUE LED L21
HIGH TORQUE BN6
HORN BN5
DRIVE ENABLE BN8
LIFT ENABLE BN9
CONTROLADOR
DE PLATAFORMA
GS-30 • GS-32 • GS-46
Abril de 2008
REV E
ES0142G
N° de pieza 97385SP

Hide quick links:

Tabla de contenido
loading

Tabla de contenido