Registrarse
Cargar
Descargar
Tabla de contenido
Contenido
Añadir a mis manuales
Eliminar de mis manuales
Compartir
URL de esta página:
Enlace HTML:
Marcar esta página
Añadir
El manual se agregará automáticamente a "Mis manuales"
Imprimir esta página
×
Marcador agregado
×
Añadido a mis manuales
Manuales
Marcas
Fermax Manuales
Sistemas de Intercomunicadores
way slim
Manual de instalador
Requerimientos Del Cableado; Distancias Máximas Según Cable Empleado - Fermax Way Slim Manual De Instalador
Ocultar thumbs
1
2
3
4
5
6
7
8
9
10
11
12
13
14
15
16
17
18
19
20
21
22
23
24
25
26
27
28
29
30
31
32
33
34
35
36
37
38
39
40
41
42
43
44
45
46
47
48
49
50
51
52
53
54
55
56
57
58
59
60
61
62
63
64
65
66
67
68
69
70
71
72
73
74
75
76
77
78
79
80
81
82
83
84
85
86
87
88
89
90
Contenido
91
página
de
91
Ir
/
91
Contenido
Tabla de contenido
Marcadores
Tabla de contenido
Idiomas disponibles
ES
EN
FR
DE
PT
Más
Idiomas disponibles
ESPAÑOL, página 1
ENGLISH, page 20
FRANÇAIS, page 38
DEUTSCH, seite 56
PORTUGUÊS, página 74
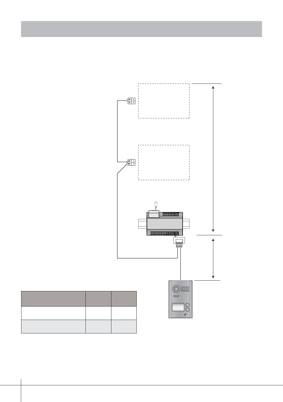
14. Requerimientos del cableado
Esquema unifi lar
Distancias máximas según cable empleado
Distancias
cable trenzado 2x0.75 mm
cable trenzado 2x1 mm
-15-
A
B
60
60
2
80
80
2
monitor
monitor
AC~
PC6
BUS(IM) BUS(DS)
B
A
Tabla de
Contenido
Anterior
Página
Siguiente
Página
1
...
13
14
15
16
17
18
19
20
Tabla de contenido
Manuales relacionados para Fermax way slim
Sistemas de Intercomunicadores Fermax Way-Fi Manual Del Instalador
(24 páginas)
Sistemas de Intercomunicadores Fermax VEO WIFI DDA 4,3 DUOX PLUS Manual De Instalador
(164 páginas)
Sistemas de Intercomunicadores Fermax MEET WIT 10 Guía Rápida
(2 páginas)
Sistemas de Intercomunicadores Fermax Way-Fi Plus Manual De Instalación
(49 páginas)
Sistemas de Intercomunicadores Fermax CityLine 1 L Manual De Instrucciones
(16 páginas)
Sistemas de Intercomunicadores Fermax Citymax 1/L Manual De Usuario
(57 páginas)
Sistemas de Intercomunicadores Fermax VEO 4+n Guia De Inicio Rapido
(2 páginas)
Sistemas de Intercomunicadores Fermax 80447 Instrucciones De Instalación
(2 páginas)
Sistemas de Intercomunicadores Fermax VEO DUOX PLUS Guia Rapida Usuario
(4 páginas)
Sistemas de Intercomunicadores Fermax SEE-U Manual De Instalación
(25 páginas)
Sistemas de Intercomunicadores Fermax CITYMAX ADS Manual De Instrucciones
(2 páginas)
Sistemas de Intercomunicadores Fermax 4+N Libro Técnico
(40 páginas)
Sistemas de Intercomunicadores Fermax 2406 Manual De Instrucciones
(2 páginas)
Sistemas de Intercomunicadores Fermax LOFT VDS Manual De Instrucciones
(12 páginas)
Sistemas de Intercomunicadores Fermax CITYMAX 128 Manual De Instrucciones
(9 páginas)
Sistemas de Intercomunicadores Fermax LOFT Manual De Instrucciones
(34 páginas)
Contenido relacionado para Fermax way slim
KIT WAY con PROXIMIDAD Esquemas De Instalación / Requerimientos Del Cableado
Fermax KIT WAY con PROXIMIDAD
SEE-U Cableado E Instalación Del Monitor Interior
Fermax SEE-U
See-U 7 1L Cableado E Instalación Del Monitor Interior
Fermax See-U 7 1L
5300 Esquema De Cableado Del Kit
Fermax 5300
MICROLINE Esquema De Cableado Del Kit
Fermax MICROLINE
DIGITAL 5 HILOS Esquema De Cableado Del Kit
Fermax DIGITAL 5 HILOS
6030 Esquema De Cableado Del Kit
Fermax 6030
DETECTA-6 Esquema De Cableado Del Kit De Videoportero Detecta-6 Ads De 1 Línea
Fermax DETECTA-6
VIDEOMEMORY 128 DIGITAL Esquema De Cableado Del Kit
Fermax VIDEOMEMORY 128 DIGITAL
Way-Fi Plus Esquema De Cableado
Fermax Way-Fi Plus
BUS2 1-2L Esquema De Cableado De Cablage Verkabelungsschema
Fermax BUS2 1-2L
Audio NCity 4+N 1 Esquemas De Cableado
Fermax Audio NCity 4+N 1
VDS NCITY 1L Esquemas De Cableado
Fermax VDS NCITY 1L
VEO XS Guía Inicio Del Monitor Veo Xs Wifi Duox Plus
Fermax VEO XS
VEO XL Guía Inicio Del Monitor Veo Xl Wifi Duox Plus
Fermax VEO XL
DUOX OneToOne CITYLINE 1-2 L Instalación De La Placa En La Calle Y Del Monitor
Fermax DUOX OneToOne CITYLINE 1-2 L
Tabla de contenido
Imprimir
Renombrar el marcador
Eliminar marcador?
Eliminar de mis manuales?
Login
Entrar
O
Iniciar sesión con Facebook
Iniciar sesión con Google
Cargar el manual
Cargar desde el disco
Cargar desde la URL